WORK
public spaces
homes
workspaces/retail
industries
project list
CONTACT
ABOUT
FEATURES
Menu
WORK
public spaces
homes
workspaces/retail
industries
project list
CONTACT
ABOUT
FEATURES
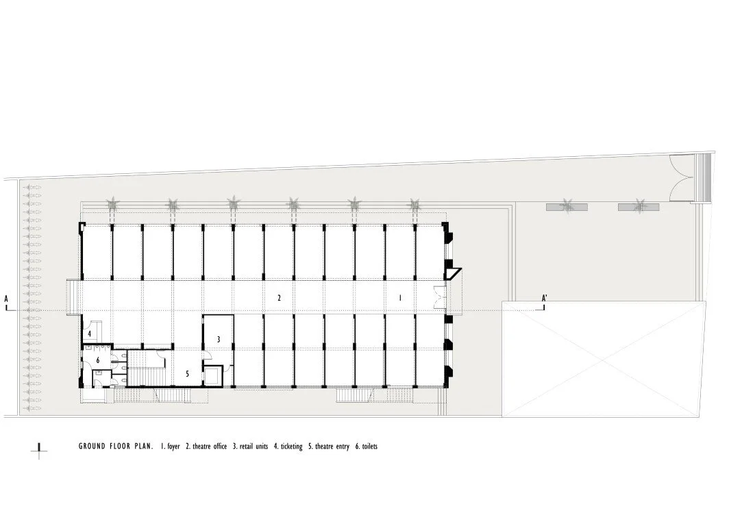
/Nova cinemas - Kurnool
location:
Kurnool, Andhra Pradesh
area:
2040 sq m
View fullsize
View fullsize
View fullsize
View fullsize
View fullsize
View fullsize
View fullsize
View fullsize
View fullsize
View fullsize
RETURN TO UFO CINEMAS
© 2020 Aakruti